Be011/606/BOX




Be-h@us のフラッグシップ(Flagship)というべき Be/606/BOX が完成しました。仙台近郊の宮城県船岡のHさんの Be-h@us です。 --------- この小さな住宅は、建築家・増沢洵による住宅建築の名作、あの「最小限住宅」を、その精神、その合理性を現代に蘇らせたいという考えで作られています。縦横3間角の9坪の平面を、現代的な「集成材・金物・パネル」による工法で、メーターモジュールの Be-h@us 6m × 6m として、正方形のプラン、箱状の躯体の2階建の住宅として作りだしました。メーターモジュールは余裕を持って、合理的な工法はすばらしい精度を持って、システマチックな考え方で、新しい時代の「最小限住宅」を作りだしました。






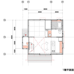
●躯体・平面「集成材・金物・パネル」による躯体です。基本的にはパネルのまま針葉樹合板9mmの素地のままです。作り付け家具、戸袋類は塗装仕上で、木でいっぱいという印象を和らげています。1階は「最小限住宅」の平面を踏襲、厨房と水廻り、和室と居間の二つの要素に分けられまです。居間の上 3m 角の吹抜け、そして階段があります。2階は 6m × 6m の正方形のプランを田の字型に割ったような平面です。真中の本棚はで区切られた反対側は寝室、2m ピッチの開口部と 3m の2階平面の「ズレ」はバルコンへつながります。 ●バルコン大きな南面開口部の前面には木製のデッキ床のバルコンが用意されています。もちろんバルコンという役目は当然ですが、この大きな開口部を環境的に保護する役割を担っています。亜鉛鍍仕上げのスティール製の吊り金物によってバルコンは支えられています。 ●開口部開口部はアイランドプロファイル製のペアガラス入りの木製建具 Be-window です。小さい窓はサイドスイング、ドレキップを使い、南面の大きなテラス戸は片引きのヘーベシーベです。全ての Be-window はジャストフィット、パネルと同じクリアランスで作られています。そのくらい全てにわたって精度の高いのが自慢です。言い換えれば柱梁の骨組自体が木製建具と同じ精度でできているのです。 Be/606/BOX は小さな家です。従って、その室内環境は開口部の影響を大きく受けます。小さい家こそ性能の高い開口部を備えるべきであると、私達は考えています。 ●玄関玄関は下屋にしました。本体とは別の土間空間です。下駄箱、郵便ポストが用意されています。 ●厨房厨房はIDEEのステンレス製キッチンです。水栓はVola、コンロはAEGの電気クックトップを備えました。 ●水廻り洗面所はALAPEの洗面器にVolaの水栓です。浴室はタイルと桧の組み合わせにスタルクシリーズの水栓でまとめました。 ●OMソーラー屋根の上の鳩小屋みたいな黒い三角屋根はOMソーラーの集熱部分です。この小さな家に相応しい小さな集熱面ですが、この 3m 角の箱の中にハンドリングボックスを備えています。Be-h@us はこんなOMソーラーの屋根をのせることも出来るのです。 --------- 現代の「最小限住宅」 Be/606/BOX を、Be-h@us のベーシックな家として、このネットワークを通じて提供していきたいと考えています。1)セルフビルド・DIY のキット化された住宅として。2)コンストラクション・マネージメントの為のキットとして。3)工務店が提供するベーシック住宅として。近々、その仕様、その価格が公開されます。

